• Home
  • About Us
  • Properties
  • On-Going Projects
  • FAQs
  • Contact Us
  1. Home
  2. Property
  3. Casa Juanita – Amparo Townhouse

Casa Juanita – Amparo Townhouse

Overview

This property is located at Malaruhat Street, Amparo Subdivision, Caloocan City, Philippines with modern homes strategically located to modern transportation and shopping malls.

Key Features

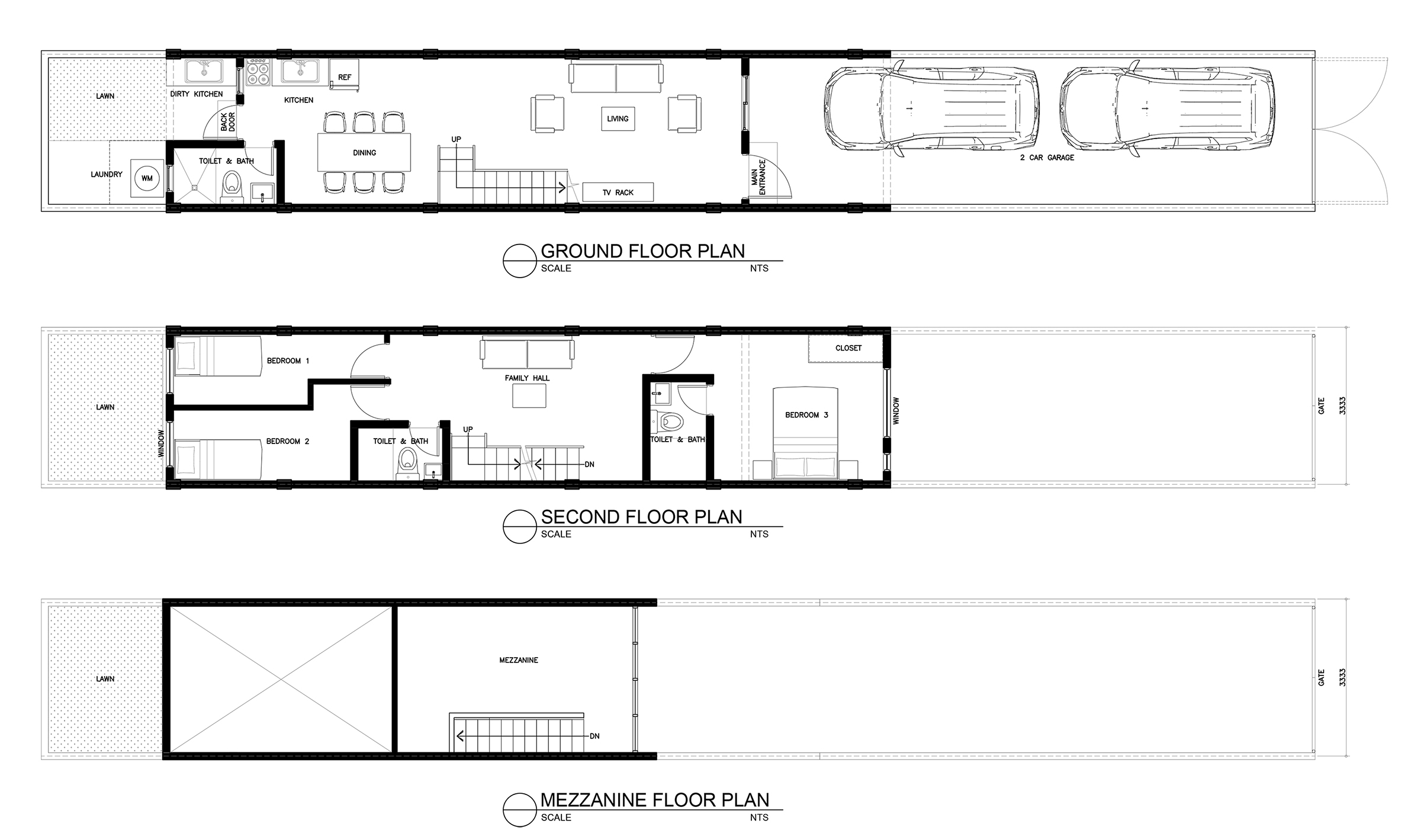
  • Gross Floor area: 95 sqm
  • Steel gate
  • 2 carports
  • Living area
  • Dining room
  • Main kitchen
  • Utility kitchen
  • Laundry area / lawn
  • 3 bedrooms
  • Family Area
  • 3 toilet and bath
  • Mezzanine

Floor Plan

Location

31-19 Maraluhat, Novaliches, Caloocan, Metro Manila

Interested in this property?

Please feel free to contact us so we can continue discussing the details of this property.

Call Us Now

Property Inquiry Form

Fields marked with an * are required

Fill out this field
Please enter a valid email address.
Fill out this field
Fill out this field
Gallery
Overview
Key Features
Floor Plan
Location
  • Home
  • About Us
  • Properties
  • On-Going Projects
  • FAQs
  • Contact Us
© Prime Sycamore 2022 - | All rights reserved.